神奈川県鎌倉市にお伺いしました。
今回は2015年に悠Uサンルームを設置させていただいたお客様から二度目のご注文をいただいての施工です。
引っ越しなされたそうで、転居先のお家にもサンルームを造ろうとお考えになり、他メーカーのサンルームを検討されていたそうです。
が、前回造った悠Uサンルームの内装である「木造り」がとても気に入っていたということで、やっぱり幾久屋のサンルームがイイ!とご用命をいただきました。
ちなみに前回のサンルームは施工例5-16でご覧いただけます。
住宅の1階への取り付けですが、建物自体が小高い場所にあるため、足場を組んでの施工になりました。
既存ウッドデッキ上への設置です。
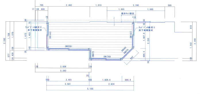
サンルームの形としてはタイプⅤの変形バージョンです。
多角形部分と四角形が合わさった形で、さらにデッキの形に合わせて入隅の箇所があります。

サンルームの床下にはデッキ材との間に補強を施しました。

屋根は天井を張る部分とツインカーボのみの部分とからなり、屋根材のツインカーボは長い物では2,340㎜もあります。
長いので補強材を入れています(下の画像右側・ツインカーボの中ほど、横に1本入れてあるのが補強材です)。
ツインカーボは空気層のある中空ポリカーボネート板で硬い素材ではありませんので、その長いツインカーボを張る屋根上の作業は神経を使うデリケートなものでした。
甲斐あって既存建物との接続部分もきれいに納まっています。
↓ 多角形部分の屋根はツインカーボのみでできています。今回はお客様のご希望で乳半色を使用しています。
既存のフェンスを活かし、フェンスを壁がわりにその上にサッシを取り付けました。
フェンスからの風雨を防ぐために、サンルームの壁となる部分にはパネルを張っています。

内部の垂木、額縁等の造作材は長野県産材の木曽桧を使用しています。
壁は仕上げ用シナ合板。
木のぬくもり溢れる内装となっています。
天井から垂れる棒状に輪っかの付いている物は、斜面対応の取り外しができる吊り下げ型物干しです。

↓ 全景
















