価格改定のお知らせ
平素より格別のご高配を賜り、厚くお礼申し上げます。
弊社の「悠Uサンルーム」はその基準価格を2022年10月1日より下記のとおり引き上げることといたしました。
昨今の原材料および副資材の価格、物流費等の急騰に加え急激な円安が進んだことに伴い、各種コストが著しく上昇しております。
弊社におきましても、各種合理化、コスト削減等の企業努力を続けておりますが、自助努力のみではこれらコストの急騰を吸収することは困難であり現在の価格の維持は難しく、やむなく価格改定を行うことといたしました。
お客様におかれましては、諸事情ご賢察の上、何卒ご理解賜りますようお願い申し上げます。
(2022年10月)
悠Uサンルーム参考価格
本体基準価格(施工費込・税抜)
タイプⅡ 3,400,000円 タイプⅢ 4,000,000円 タイプⅤ 3,350,000円
以下、参考価格(税抜)
東京までの諸経費
タイプⅡ 493,000円 タイプⅢ 658,000円 タイプⅤ 462,000円
東京まで長野から職人を派遣した場合の工事費用
<電気工事>
タイプⅡ 190,000円 タイプⅢ 206,000円 タイプⅤ 190,000円
<基礎工事>
タイプⅡ 443,000円 タイプⅢ 519,000円 タイプⅤ 435,000円
例: 東京で悠Uサンルームの設置を電気工事・基礎工事とともに行った場合の価格(参考)
本体価格+諸経費+電気工事+基礎工事の合計(設備およびその他工事は除く)
タイプⅡ 4,526,000円 タイプⅢ 5,383,00円 タイプⅤ 4,437,000円
【オリジナル・サンルーム】 基準タイプの仕様・価格
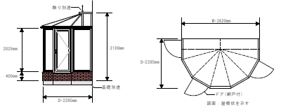
タイプⅡ・Ⅲの正面図
タイプⅡ・Ⅲ(7面体)の幅は共通3,620mmで、奥行きはタイプⅡが2,285mm、タイプⅢが3,120mmです。
タイプⅤ(5面体)の幅は2,735mmで、奥行きは2,586mmです。
寸法はあくまでも目安です。構造上、法規上の問題がなければどんな大きさのものでも製作いたします。
タイプ-Ⅱ

| タイプⅡ 7面体 |
|---|
| W3620mm D2285mm |
| ドア網戸付き(3か所) ※取付位置自由 |
| 施工費込み価格・税抜
3,400,000円 |
タイプ-Ⅲ

| タイプⅢ 7面体 |
|---|
| W3620mm D3120mm |
| ドア網戸付き(3か所) ※取付位置自由 |
| 施工費込み価格・税抜
4,000,000円 |
タイプ-Ⅴ

| タイプⅤ 5面体 |
|---|
| W2735mm D2586mm |
| ドア網戸付き(3か所) ※取付位置自由 |
| 施工費込み価格・税抜
3,350,000円 |
- その他経費(運搬諸経費、交通費、宿泊費等)は別途計上いたします。
- 基礎工事、電気、設備工事等の関連工事費用は価格に含まれておりません。
- 工事の特性上、見積り時点(契約時)において予測しない事態(例:既存建物を剥がしてみたら修理が必要になった等)が生じた場合は、別途見積りとなります。
フリータイプ
独立型
基準仕様
お客様へのお願い
お問い合わせの前に
ホームページ内の「オリジナル・サンルーム(悠Uサンルーム) お問い合わせ~完成までの流れ」をご確認下さい。
ご注文、ご契約の前に
下記項目についてご確認下さい。ご了承のうえ、ご注文およびご契約いただきますよう、お願いいたします。
1. サンルームの面積が10m²を超える場合について
面積が10m²を超える場合は基本的に建築許可が必要です。その他関連の手続きを含め、お客様にて行っていただきます。
また、その他の法令に関する事項につきましても、お客様にて行っていただきますよう、お願いいたします。
2. 外観色について
アルミ軸組材と樹脂サッシからなる外観基準色はホワイトです。カラーの変更も可能です(オプション)。アルミ軸組材と樹脂サッシはメーカーの既製品を使用しています。アルミ軸組に樹脂サッシを組み込むため、材質やメーカーの違いにより、同色または同系色のどのような組み合わせであっても色調に違いがあります。
3. 屋根材(ツインカーボ スタンダードクリア)の特性について
ツインカーボは、ガラスとは違い、伸縮性の大きな部材です。
ツインカーボの伸縮が温度変化により起こる場合もあります。特に外装材として使用する場合、太陽光等環境の温度変化は直接影響をおよぼします。
屋根材として施工する際には、ツインカーボと強化ガラスとを密着させ、その周辺を固定します。そのために、温度変化によりツインカーボが伸縮すると音が発生します。これは環境の変化によるもので避けられません。
屋根材による音の発生についてご理解、ご承知いただきましたうえで、ご注文いただきますよう、お願いいたします。
4. 既存建物の清掃について
悠Uサンルームは既存の外壁や軒天がそのままサンルームの内壁や天井となる場合がほとんどです。サンルーム施工前にお客様にて清掃をお願いいたします。
5. 駐車場の確保について
現場での施工に際し、工事の期間中、駐車場の確保をお願いいたします。
施工現場より半径100メートル以内の場所に、原則3台分の駐車場を無償にてご提供下さい。また、車両は工事車両となりますので、高さ制限のない平置きの駐車場をご用意いただきますよう、お願いいたします。
6. 現場の障害物等の処理について
資材等の搬入経路も含め、現場において施工の障害となり得る物(例:エアコンの室外機、庭の石塔や植木等)の処理については、原則施工前にお客様により移動、撤去、処分等をお願いいたします。
7. 仮設トイレについて
現場の状況により、場合によっては敷地内に仮設トイレを設置させていただく場合があります。ご了承のほど、お願いいたします。
8. 仕様内容をご確認下さい
ご契約の前に「悠Uサンルーム®の仕様について(PDF)」をお読み下さい。内容を確認し納得されたうえで、ご注文およびご契約をいただきますよう、お願いいたします。
アフターサービスについて
不具合が発生した場合について
悠Uサンルームをお使いいただいている期間中に、何らかの不具合が認められた場合は速やかにご連絡をいただきますよう、お願いいたします。
お客様よりご連絡があった場合、その不具合の内容に応じて直ちに修理、部品交換等の手配をいたします。
初期の不具合を弊社にご連絡いただけずに長期間放置したままにされますと、その損害が拡大する恐れがあります。そのような拡大損害に対しては、修理費用をお客様にご負担いただく場合がありますので、ご連絡は速やかにお願いいたします。
準基準仕様‐屋根材(天井)
悠Uサンルームの基準屋根仕様は強化ガラス(厚さ5㎜)とツインカーボスタンダードクリア(厚さ10㎜)ですが、屋根を遮熱・断熱仕様にすることができます。
令和4年8月より、その遮熱・断熱仕様の屋根(天井)を準基準仕様としました。
天井張りの工事は過去にはオプションとして施工していましたが、サンルームの欠点と言える「夏の暑さ」を劇的に解消するということ、また、暑さ対策を求めるお客様の少なくないご要望もあり、積極的に皆様にお勧めするべく、準基準仕様としたものです。
遮熱・断熱仕様の天井は、強化ガラス5㎜+ツインカーボスタンダードクリア10㎜の下にケイカル板、断熱材、木組み下地を配し、その下に天井仕上げ材としてシナ合板またはアルミ樹脂積層複合板を使用しています。
また、タイプⅡ、タイプⅢにおいては、屋根の多角形部分を取り外し可能な天井としたオプション仕様があり、別に紹介しておりますのでご参照ください。
悠Uサンルーム 屋根仕様の紹介 ⑦着脱可能な遮熱・断熱天井(オプション)
悠Uサンルーム・屋根材仕様変更のお知らせ
弊社が製造販売施工を行っている「悠Uサンルーム」の屋根材には、長年「ツインカーボⓇヒートカット(遮熱断熱高耐候中空シート)10㎜」を使用して参りましたが、この度この仕様を変更することとなりました。
従来、「5㎜強化ガラス+ツインカーボヒートカット」であった屋根の基準仕様を、令和4年より「5㎜強化ガラス+ツインカーボスタンダード(断熱高耐候中空シート)(クリア)」へ変更いたします。
「ツインカーボヒートカット」は理想の屋根材としてこれまで使用して参りましたが、本年2月に輸入元AGC(旧旭硝子)における販売中止の通達があり、それに伴う変更となっております。
今回の仕様変更は「悠Uサンルーム」の重要な基準仕様変更であることから、上記のように公表、お知らせいたします。
この度の屋根材仕様変更に関し、遮熱効果の高い板金屋根、断熱仕様の天井等、さらに考慮し多岐にわたる工法を検討しております。
また、これに限らず、今後も改良を重ねより良い製品づくりを目指して努力を続けて参ります。
(令和3年11月30日)
仕様・価格に関する表示内容は2022年10月現在のものです。
仕様は予告なしに変更することがありますので、ご了承下さい。


